Saltar al contenido

Attenzione: dal 1/1/2023 l’ASUR cessa di esistere. I contenuti del sito continueranno ad essere validi fino all’attivazione dei nuovi siti delle Aziende Sanitarie Territoriali (AST). La dicitura ancora presente di “Area Vasta” va letta come “AST”.

Ai sensi della L.R. Marche 19/2022 dal 01/01/2023 l'azienda ospedaliera "Ospedali Riuniti Marche Nord" è incorporata nell AST Pesaro Urbino che subentra a tutti gli effetti nell'attività e nei rapporti giuridici attivi e passivi.

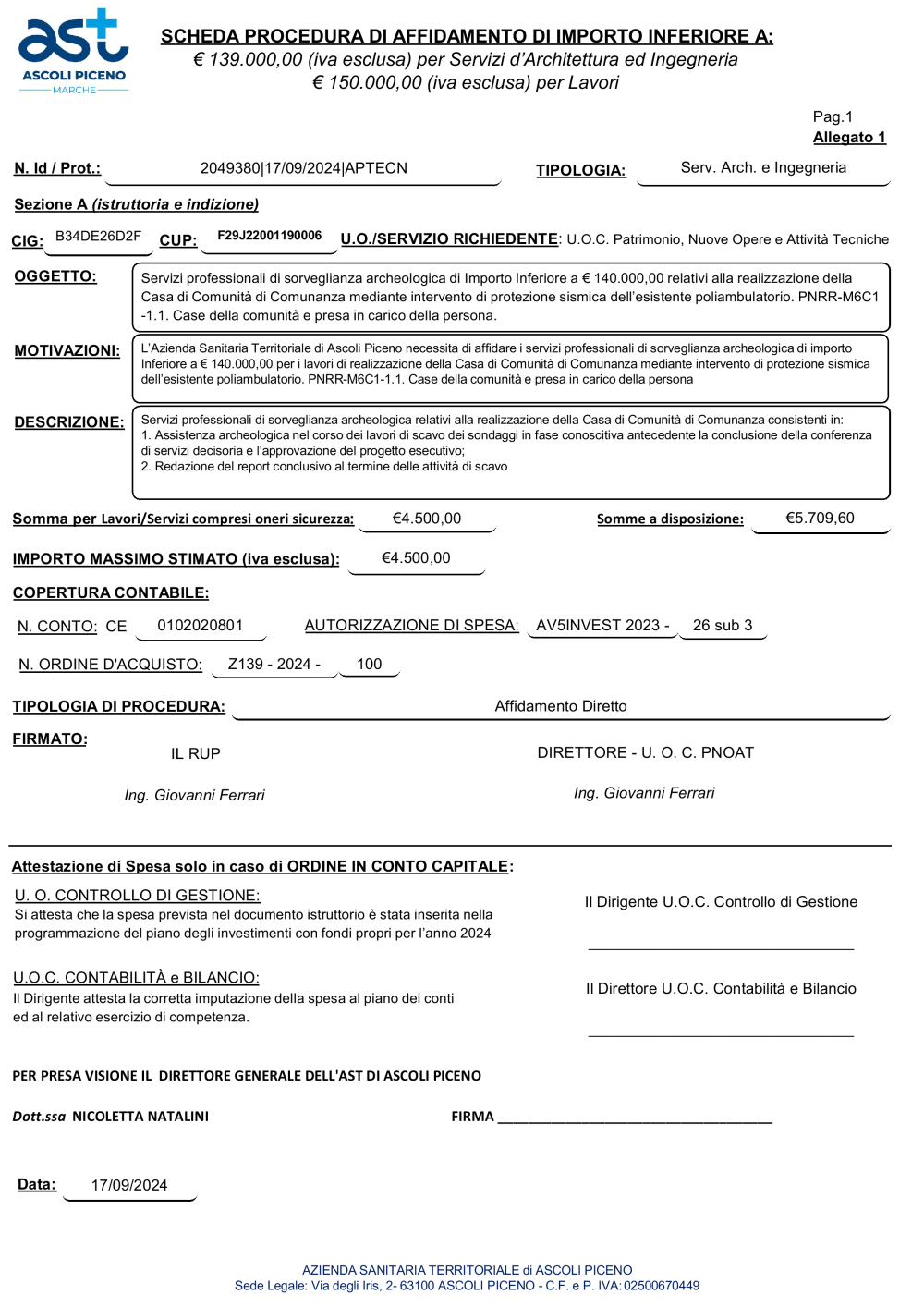
2024 AFFIDAMENTO Servizi professionali di sorveglianza archeologica per realizzazione Casa di Comunità Comunanza PNRR

2024 AFFIDAMENTO Servizi professionali di sorveglianza archeologica per realizzazione Casa di Comunità Comunanza PNRR

Vista en miniatura Subido por Cristina Cocci Grifoni, 11/11/24 11:51
Promedio (0 Votos)
1 de 3
Comentarios
No hay ningún comentario aún. Sea usted el primero.

Versión 1.0

Modificado por última vez por Cristina Cocci Grifoni
11/11/24 11:51
Estado: Aprobado
Descargar (644k) Obtener la URL o la URL WebDAV.
Histórico de versiones
Versión Fecha Tamaño  
1.0 hace 10 Meses 644k
Mission