Salta al contigut

Attenzione: dal 1/1/2023 l’ASUR cessa di esistere. I contenuti del sito continueranno ad essere validi fino all’attivazione dei nuovi siti delle Aziende Sanitarie Territoriali (AST). La dicitura ancora presente di “Area Vasta” va letta come “AST”.

Ai sensi della L.R. Marche 19/2022 dal 01/01/2023 l'azienda ospedaliera "Ospedali Riuniti Marche Nord" è incorporata nell AST Pesaro Urbino che subentra a tutti gli effetti nell'attività e nei rapporti giuridici attivi e passivi.

provvedimento di aggiudicazione

provvedimento di aggiudicazione

Miniatura Penjat per Paola Piccioni, 27/06/24 15:17
Mitjana (0 Vots)
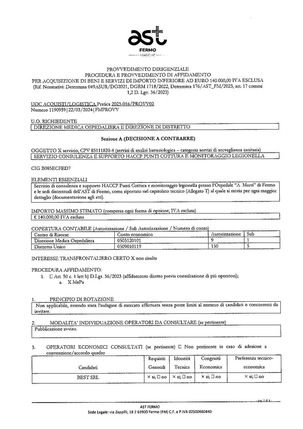
aggiudicazione servizio consulenza e supporto HACCP punti cottura e monitoraggio legionella
1 de 4
Comentaris
Encara no hi ha cap comentari. Vull ser el primer.

Versió 1.0

Última modificació feta per Paola Piccioni
27/06/24 15:17
Estat: Aprovat
aggiudicazione servizio consulenza e supporto HACCP punti cottura e monitoraggio legionella
Descàrrega (87k) Obté la URL o la URL de WebDAV.
Historial de la versió
Versió Data Mida  
1.0 fa 1 Any 87k
Mission